
经常有客户向我们咨询反馈说,收到一大箱子的仪表,不知道怎么在现场安装使用。今天就向大家介绍一下FLQ6200型流通式浊度仪的安装过程,希望大家不会再对着一大堆仪表配件苦恼不已啦!



备品配件说明



安装调试说明
一、变送器安装
在选择变送器安装位置时,需要遵循如下原则:
1、特别注意避免变送器受阳光直射;
2、避免变送器受到过多震动;
3、如果情况允许,应将变送器安装于稍稍高于操作者平视水平的位置,这样将会有利于操作者可以非常舒服地浏览前部面板和进行控制操作;
4、为变送器箱体的开启和维护留出足够的空间;
5、如果变送器安装于室外,必须做仪表箱保护变送器,以免变送器受到损伤。
6、变送器周边不能有大型电机或变频设备,以免干扰信号影响仪表正常使用。
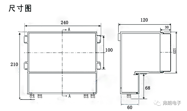
二、变送器及仪表箱尺寸
1、变送器尺寸及安装背板示意图如下:

2、仪表箱建议尺寸图如下:

本仪表为壁挂式安装,背板为仪表箱内固定在仪表箱后壳上的用于悬挂仪表的板材。仪表固定时,先按照背板图在背板上开孔,将仪表挂在背板上,然后再将背板固定在仪表箱内。
三、浊度流通系统
上图为浊度计流通系统整体图。流通系统黑色背板的两侧分别有两个预留孔,用于固定整个流通系统。在使用流通式浊度计之前,请将此流通系统固定在平整的墙体上。
1.浮子流量计

(1)浮子流量计的主要用途
a、为便于观察流速,且自带阀门,可以很方便的控制流速。
b、有一定的消除气泡能力。
(2)浮子流量计的使用方法
a、流通式浊度的测量对流速的要求较高。在使用此流通系统时,主要靠浮子流量计下端的阀门来控制流速。阀门上有示意开关方向的图标,在调整流速时,请按照图标表示的方向旋转阀门,调整流速。
b、整个流通系统的进水口为浮子流量计的进水口,也就是浮子流量计下端由阀门控制的进水口。在出厂时,由于客户的使用环境未知,所需取水管的长度无法估计,所以,在进水口的弯头上,我们接了一段取水管,此取水管如果长度足够,则客户可以直接与取水点相连,如果长度不够,请客户自行接上一段取水管,然后与取水点相连。
c、浮子流量计的出水口位于上端。水样儿从浮子流量计中流过后,经过浮子流量计的出水口,与流通杯的进水口相连。
2.流通杯
(1)流通杯的主要用途
流通式测量大多用于测量浊度较小的水样。此类水样的测量受到外界不良因素的影响较大。流通杯的作用主要为消除外界不良因素对测量的影响,例如光照等等。
(2)流通杯的使用方法
a、流通杯与传感器的连接

如图所示,传感器底部及流通杯内部都有螺纹。在连接传感器和流通杯时,只需将传感器旋进流通杯内即可。
b、流通杯的安装及连接方法

上图为整个流通系统的后视图。如图所示,右侧两个弯头,上方弯头为浮子流量计出水口,下方弯头为浮子流量计进水口(与取样点相连);左侧最上方为流通杯的排气管,左侧中间弯头为流通杯排水口,左侧下方弯头为流通杯的进水口。我们可以看到,流通杯的进水口与浮子流量计的出水口是相连的,样品经过浮子流量计之后进入流通杯,传感器在流通杯内测量。样品经过流通杯后,从左侧中间的排水口排出。
END




关注我们
了解更多信息
